Nave logística tipo C en alquiler de construcción (ref.16869)

 1.563,02 m2 |

alquiler: 10.552 €/mes
Ref. 16869 |  1.563,02 m2 |

alquiler: 10.552 €/mes

Nave logística tipo C en alquiler de construcción

Nave Logística en alquiler en Getafe, Madrid (Carpetania)

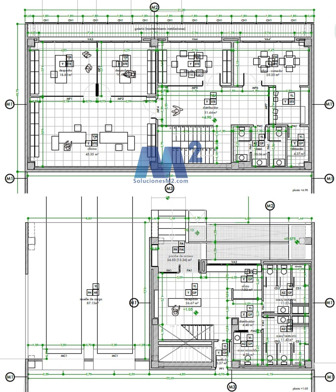
Nave logística tipo C de construcción llave en mano en alquiler de 1.900 m2 construidos en parcela de 2.867,56 m2 

Planta baja 1.368,53 m2

2 muelles

10 m de altura

Oficina de 194,49  m2

Gastos de comunidad: Arrendatario

Disponibilidad 12 meses desde la firma del contrato ( concedida licencia de obras)

Construidos 1.563,02 m2
Parcela 2.867,56 m2
Calificación Energética No necesaria
La dirección del inmueble es aproximada.



Si desea más información sobre esta propiedad, por favor, rellene el cuestionario:

Soluciones M2
Avenida Fuente Nueva 4
28703 – San Sebastián de Los Reyes

( 34) 91 651 30 12 -