Nave Logística en alquiler en Getafe, Madrid (Carpetania) (ref.16960)

 1.835,05 m2 |

alquiler: 12.388 €/mes
Ref. 16960 |  1.835,05 m2 |

alquiler: 12.388 €/mes

Nave Logística en alquiler en Getafe, Madrid (Carpetania)

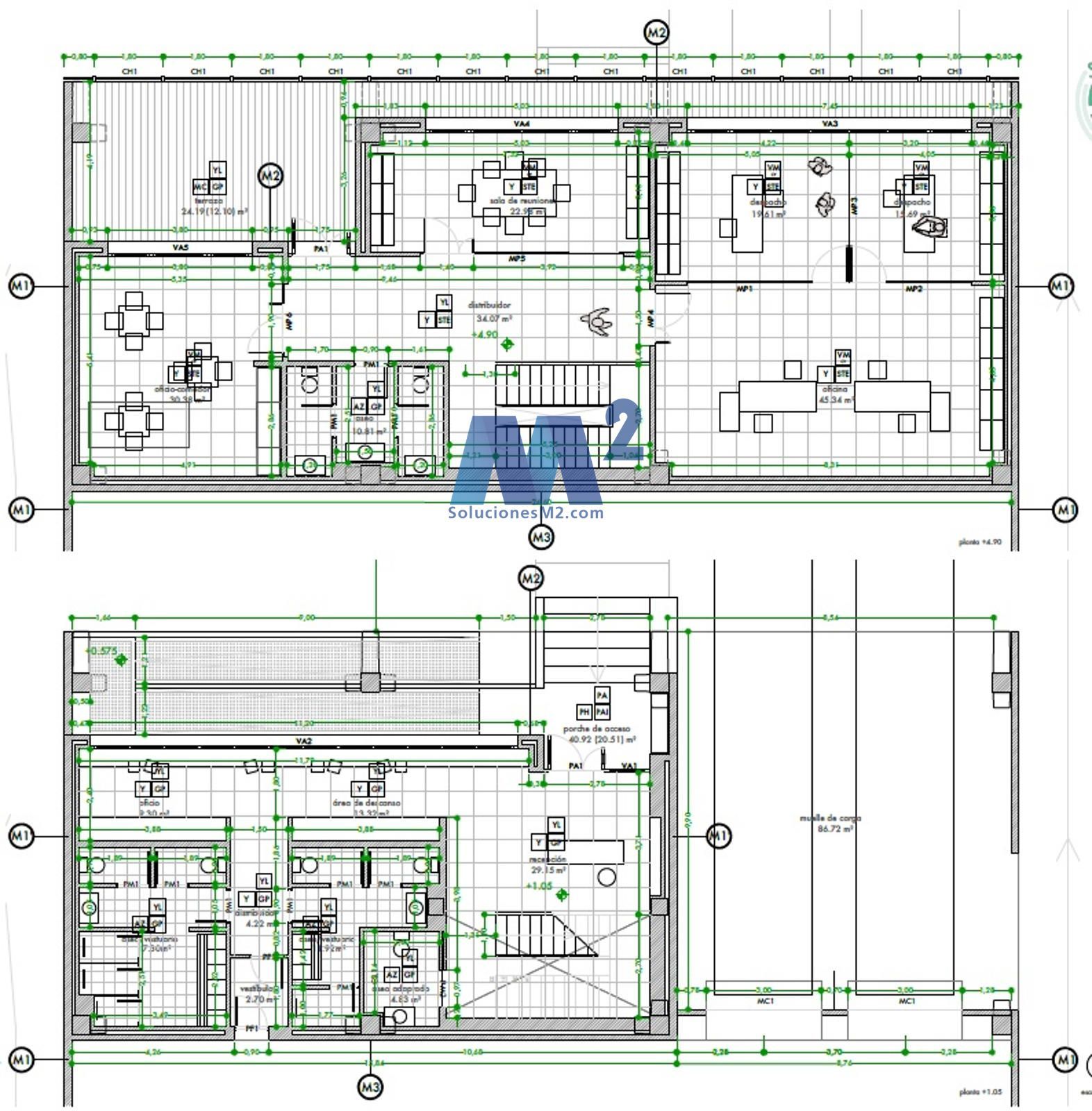
Nave logística construcción llave en mano de 1.835,05 m2 construidos en parcela de 3.069,62 m2 

Planta baja de 1.589,06 m2 

2 muelles

10 m de altura

Oficina planta 1ª de 249,99 m2

Gastos de comunidad: Arrendatario

Disponibilidad Q1 2027

Construidos 1.835,05 m2
Parcela 3.069,62 m2
Calificación Energética No necesaria
La dirección del inmueble es aproximada.



Si desea más información sobre esta propiedad, por favor, rellene el cuestionario:

Soluciones M2
Avenida Fuente Nueva 4
28703 – San Sebastián de Los Reyes

( 34) 91 651 30 12 -